基于设有造水机的主机缸套冷却水低温报警原因分析

打开文本图片集
1引言
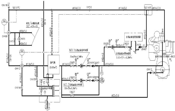
船舶主机的高温冷却水系统是保障主机正常运行的关键部分,主要用于带走燃烧和摩擦产生的热量,防止设备过热损坏[。为此,主机高温淡水冷却系统往往设有由海水冷却的高温淡水冷却器。为了节能,不少船舶配置造水机,以利用其主柴油机缸套水热量蒸发海水制造淡水。主机缸套水多采用闭式循环系统,所增造水机往往与主机高温水冷却器串联在主机高温缸套水管路上,并各设旁通管路,且在各旁通管路上设三通温控阀,以自动调节高温冷却淡水温度,保证各相关设备能在设定的温度范围内稳定运行。(剩余4139字)