注册帐号丨忘记密码?
1.点击网站首页右上角的“充值”按钮可以为您的帐号充值
2.可选择不同档位的充值金额,充值后按篇按本计费
3.充值成功后即可购买网站上的任意文章或杂志的电子版
4.购买后文章、杂志可在个人中心的订阅/零买找到
5.登陆后可阅读免费专区的精彩内容
打开文本图片集
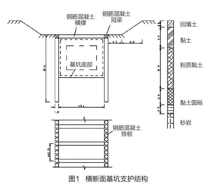
摘要:以某隧道出口明挖深埋段基坑为研究背景,结合该项目实际情况,设计出两种支护结构优化方案,通过有限元分析软件对三种设计方案进行数值模拟分析,比较两种优化方案与原有设计方案相比时的优化效果,最后采用层次分析法对三种支护结构进行综合评价,最终得出优化方案一为最优方案的结果。
关键词:明挖深基坑;数值模拟;层次分析法;支护结构优化
0 引言
深基坑的支护设计对工程质量和施工安全有较大影响。(剩余4506字)
登录龙源期刊网
购买文章
隧道出口明挖深埋段基坑支护结构优化研究
文章价格:4.00元
当前余额:100.00
阅读
您目前是文章会员,阅读数共:0篇
剩余阅读数:0篇
阅读有效期:0001/1/1 0:00:00