注册帐号丨忘记密码?
1.点击网站首页右上角的“充值”按钮可以为您的帐号充值
2.可选择不同档位的充值金额,充值后按篇按本计费
3.充值成功后即可购买网站上的任意文章或杂志的电子版
4.购买后文章、杂志可在个人中心的订阅/零买找到
5.登陆后可阅读免费专区的精彩内容
打开文本图片集
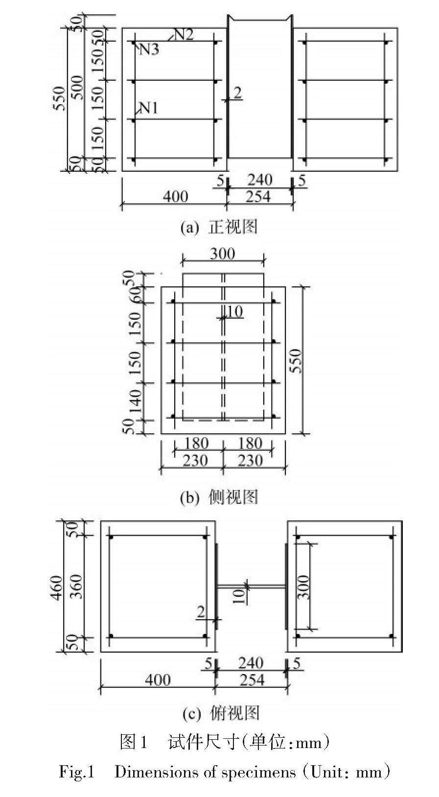
摘 要 为研究预应力混凝土梁加固所用的外贴加劲钢板与混凝土黏结面的抗剪性能,开展了钢混黏结面推出试验及有限元分析。通过推出试验测得黏结面的剪力-位移曲线、抗剪强度和破坏形态。对比有、无加劲肋试件的抗剪强度,得出加劲肋对黏结面剪切受力性能的影响。通过参数化分析,得出影响黏结面抗剪性能的关键设计参数。(剩余13785字)
登录龙源期刊网
购买文章
加劲钢板与混凝土黏结面抗剪性能研究
文章价格:6.00元
当前余额:100.00
阅读
您目前是文章会员,阅读数共:0篇
剩余阅读数:0篇
阅读有效期:0001/1/1 0:00:00